Italiano
English
289.000 €

Villa Bifamiliare: Comfort e privacy nel cuore del paese

Villa in vendita • Zeccone
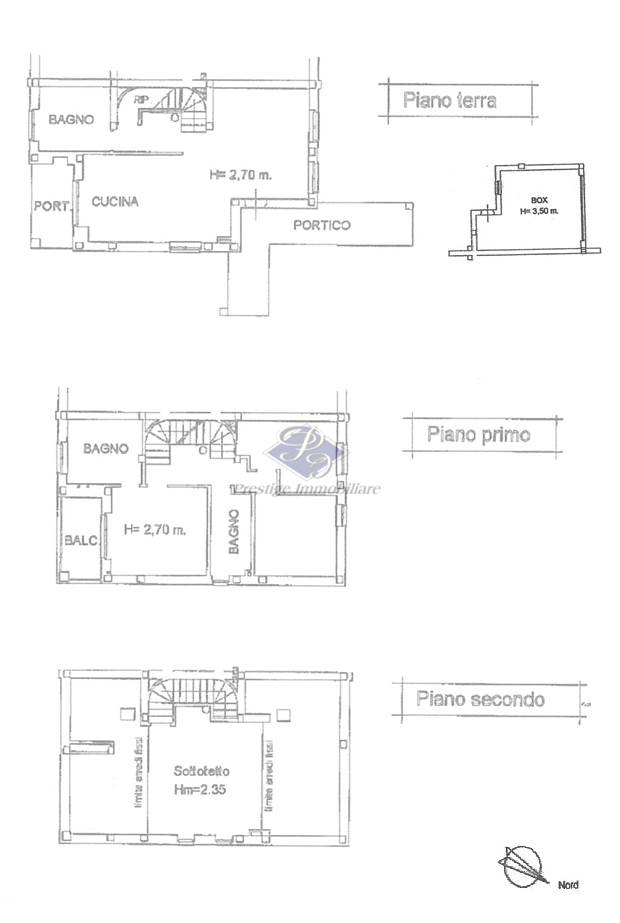
In un contesto residenziale tranquillo e ben curato, nel centro di Zeccone (PV), proponiamo una splendida porzione di villa bifamiliare che coniuga eleganza, comfort e funzionalità, inserita in una via privata al servizio di poche unità abitative, ideale per chi desidera vivere in un ambiente riservato senza rinunciare alla comodità dei principali servizi. La casa si sviluppa su tre livelli per complessivi 178 mq e accoglie con un piacevole portico d’ingresso che introduce ad una luminosa zona giorno composta da un ampio salone e da una cucina abitabile, entrambi affacciati sul giardino privato e collegati a un grazioso portico, perfetto per vivere momenti conviviali all’aperto; sullo stesso piano trovano spazio anche un bagno/lavanderia e un pratico locale ripostiglio. La zona notte, al piano primo, è pensata per garantire comfort e privacy e si compone di una camera matrimoniale con balcone e bagno padronale con doccia idromassaggio, oltre a due ulteriori camere servite da un secondo bagno. Il piano mansardato, impreziosito da travi in legno a vista, ospita un ampio ambiente open space dal fascino caldo e accogliente, ideale come studio, area relax o ulteriore spazio notte. Le finiture sono curate e di qualità, con parquet nelle camere e nella mansarda, serramenti in legno con doppi vetri completi di zanzariere e inferriate, oltre a impianti pensati per il massimo comfort abitativo, tra cui aria condizionata, antifurto perimetrale e volumetrico, impianto solare termico e riscaldamento autonomo con caldaia a condensazione. All’esterno, il giardino si presenta ben organizzato, con una zona pavimentata arricchita da gazebo e una parte verde piantumata, ideale per chi ama gli spazi all’aperto ma con una gestione semplice. Completa la proprietà un’ampia autorimessa di 41 mq con apertura automatizzata, perfetta per soddisfare ogni esigenza di spazio. Una soluzione abitativa completa e armoniosa, pensata per chi cerca qualità, tranquillità e uno stile di vita confortevole in un riservato contesto residenziale.
Caratteristiche principali
Codice
V000344
Città
Zeccone
Categoria
Villa
Prezzo
289.000 €
Spese condominiali
140 € / anno
Locali
5
Camere
4
Bagni
3
Mq
178
Box
2
Mq Box
41
Mq Giardino
150
Balconi
1
Classe energetica
D
134,65
Stato Immobile
Ottimo
Grado
Signorile
Panorama
Vista Giardino
Orientamento
Nord Ovest Sud Est
Lati Liberi
3
Giardino
Privato
Arredi
Non Arredato
Tipo Soggiorno
Soggiorno
Tipo Cucina
Abitabile
Riscaldamento
Autonomo
Tipo Riscaldam.
Caldaia a Condensazione
Tipo Impianto
Radiatori
Fonte Energetica
Metano
Acqua Calda
Autonoma a Pannelli
Raffrescamento
Split
Infissi
Legno Doppio Vetro
Serramenti
Ottimo
Persiana
Tapparella Legno
Pavim. Giorno
Ceramica
Pavim. Notte
Parquet
Pavim. Cucina
Ceramica
Pavim. Bagno
Ceramica

Accessori: Antifurto, Aria Condizionata, Doppi Vetri, Impianto Satellitare, Lavanderia, Pannelli Solari, Passaggio Automobilistico, Passaggio Pedonale, Porta Blindata, Ripostiglio, Stufa a Pellet, Zanzariere

Richiedi informazioni
Invia
Condividi su
Cookie preference