Italiano
English
300.000 €

Appartamento nuovo al primo ed ultimo piano con terrazzo

Appartamento in vendita • San Genesio ed Uniti
A San Genesio ed Uniti, in una zona residenziale riservata e ben collegata a Pavia, nasce questo appartamento di nuova costruzione, inserito in una piccola palazzina di sole tre unità immobiliari.
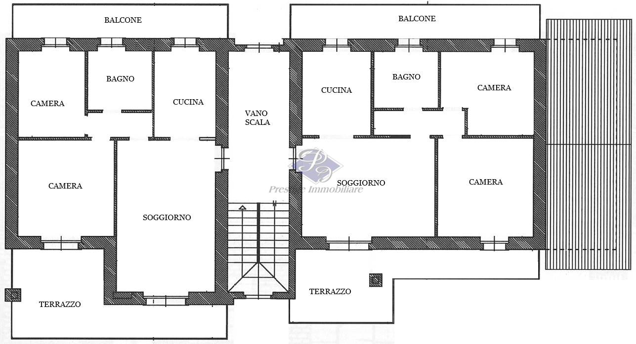
Situato al primo ed ultimo piano, l’appartamento è libero su tre lati e regala spazi ariosi, ben distribuiti e pieni di luce. La zona giorno si apre su un ampio terrazzo, perfetto per cene all’aperto, momenti di relax o semplicemente per godersi l’aria aperta. Anche la camera matrimoniale affaccia su questo spazio, creando un’atmosfera intima e accogliente.
La cucina, la seconda camera e il bagno dispongono invece di un balcone dedicato, rendendo ogni ambiente naturalmente luminoso.
L’immobile nasce con una particolare attenzione all’efficienza energetica e al comfort abitativo, raggiungendo Classe Energetica A3/A4. Le soluzioni costruttive e impiantistiche garantiscono elevati standard di isolamento, bassi consumi e un clima interno ottimale in ogni stagione, grazie all’utilizzo di tecnologie moderne e sostenibili.
La palazzina si distingue anche esteticamente per la facciata in muratura faccia a vista, elegante e senza tempo.
Completa la proprietà una autorimessa doppia, comoda e spaziosa.
Un’abitazione ideale per chi ricerca design, comfort e riservatezza, in un contesto moderno e curato, senza rinunciare alla comodità dei collegamenti con la città.
Caratteristiche principali
Codice
APP P1
Città
San Genesio ed Uniti
Categoria
Appartamento
Prezzo
300.000 €
Locali
3
Camere
2
Bagni
1
Mq
85
Box
2
Mq Box
30
Mq Balcone
14
mq Terrazzo
22
Piano
1
Classe energetica
A4
Stato Immobile
Nuovo
Grado
Signorile
Posizione
Centro
Panorama
Vista Aperta
Orientamento
Est Nord Ovest
Lati Liberi
3
Giardino
Privato
Arredi
Non Arredato
Tipo Soggiorno
Soggiorno
Tipo Cucina
Abitabile
Riscaldamento
Autonomo
Tipo Riscaldam.
Pompa di Calore
Tipo Impianto
Pavimento
Fonte Energetica
Fotovoltaico
Acqua Calda
Autonoma
Raffrescamento
Split
Infissi
PVC Triplo Vetro
Serramenti
Nuovo
Persiana
Persiana Metallo
Pavim. Giorno
Personalizzato
Pavim. Notte
Personalizzato
Pavim. Cucina
Personalizzato
Pavim. Bagno
Personalizzato
Accesso Disabili
Nessuna Barriera
Accesso interno disabili
Pieno accesso

Accessori: Impianto Fotovoltaico, Passaggio Automobilistico, Passaggio Pedonale, Porta Blindata, Tripli Vetri, Zanzariere

Richiedi informazioni
Invia
Condividi su
Cookie preference